发布日期:2025-03-09 03:17 点击次数:131
自律,应该是当代中年人最高的生活境界。把工作当修行,把健康当责任,把赚钱当底气。细水长流,不卑不亢。余生,用足够的自律,活出自己想要的样子。
当然,一个高质量的生活方式,也一定是以高效率为基础。尤其是在这个快节奏的时代下,“精简生活”,更是成为了当代中年人首选的生活模式。
像下面这对夫妻在装修新家时,就以“去家务化”为设计核心,打造了一个极简好打理的新家。同时,巧妙的空间布局,明亮的氛围,也兼顾了实用与舒适。

本案来自北京,面积110㎡,屋主是一对中年夫妻,有一个女儿。理想中的家,应该是简约舒适好生活,并倾向原木色格调。
除此之外,男主需要有一块阅读、喝茶的功能区,女主则希望家具都是细高脚结构,方便日常打理。
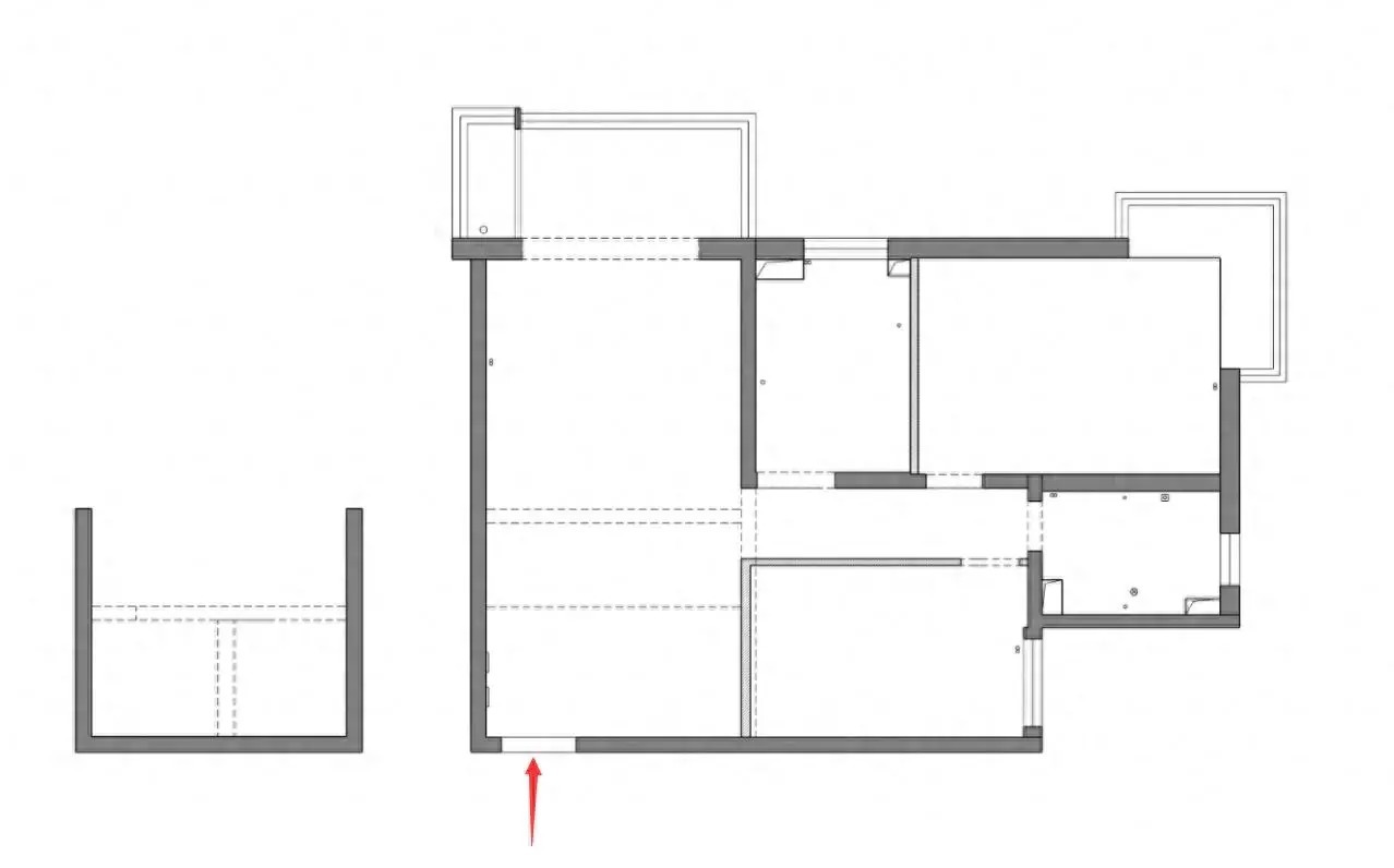
原户型为两室带阁楼结构,由于之前装修过,所以格局也中规中矩。因此,二次改造重点就放在了细节优化上。

改造亮点:
1、客厅保留4米层高,并以极简的方式,让空间表现更加敞亮。
2、厨房门洞内退,释放出冰箱、洗烘机空间。
3、餐厅向次卧扩大,延伸出一块多功能区。
4、卫生间干湿分离,增加生活效率。

改造后的玄关,在进门左手边定制了一组整面墙的储物柜,并将原有的旋转楼梯更换成了直梯。
一来拥有了大量的储物能力,哪怕收纳50-60双鞋子,也可以轻松得到满足。二来楼梯旁边的立柱刚好代替了玄关隔断的作用,让入户动线有了迂回。
除此之外,玄关柜底部做悬空处理,也充分遵循了“去家务化”的设计主题,既轻盈又方便了日常打理。

为提升楼梯的平缓度,起步台阶位置做了双边设计,无论从哪个方向上楼,都可以让上楼更加安全、舒适。
色彩方面选用了经典的白色+原木色,一来符合屋主的审美,二来也为空间增添了一抹简洁清爽的格调,且颜值很高。

打破传统的材质限制,并采用纤薄的钢板作为楼梯扶手,再喷上质感饱满的漆粉,色彩表现那叫一个正。同时,也将实木材质的踏板衬托的更加细腻温润了。

从楼梯上来就是利用层高优势改造的小阁楼,由于面积和层高都有限,所以直接将其打造出一个储物间,反而会更加实用。
阁楼部分的防护栏选用了无边框玻璃,进一步体现了“去家务化”+“极简风格”主题。

玄关看向客厅视角,结构上保留了原有的4米层高优势,最大程度为餐厅和阁楼提供了采光,使空间更加敞亮、开阔。
沙发墙一角和顶面,采用同款木饰面做包裹处理。一来平衡了基调,让留白空间不会太过冷峻;二来也让视觉有了更多的延伸。

电视墙留白,看似有一些单调,但当纯白色的电视柜与楼梯台阶连成一体后,却也在视觉上做到了工整秩序,并再次起到了拉伸空间的作用。


客厅看向功能区视角,扩大后的餐厅整合了用餐、办公、客房功能,以应对不同的生活场景需求,让空间更具成长性。
细脚造型的餐桌与餐椅,可以给予空间足够的松弛与灵活。而给餐边柜预留出水吧台,也方便了直饮水机安装。

利用部分次卧面积打造的办公区,是男主的专属功能区。虽说是开放式结构,但在顶面预留窗帘轨道后,却也在日常中做到了开合自如。而隐藏在侧面衣柜里的墨菲床,则充分考虑到了老人过来小住的需求。


主卧在延续外面材质的同时,给床头刷上了咖色涂料,让睡眠氛围更加安宁、舒缓。

衣柜放在了床尾处,并以原木+白色的方式,增加了空间层次。而轻柔的纱帘选择,也有效过滤了阳光,让氛围更加柔和。

厨房门洞在原有的空间基础上,进行了内退处理,继而释放出冰箱、洗烘机的空间需求。当然,在厨房安装玻璃门隔断的情况下,这种处理方式,也能提升生活效率。

厨房内部做了最实用的U型橱柜布局,并通过高低台面的方式,强调了操作舒适性。而白色的上柜,原木色的下柜,也都在与外面呼应的情况下,产生了更多的烟火气息。



卫生间的门洞同样做了内退处理,让洗漱台独立在外,极大减少了湿气对柜体的影响,且提升了使用效率。

本案就分享到这里,虽说每个人对自律的定义都不同,但懂得严以律己的人,一定有一个精彩的人生。
就如我们常说的那样:“人生就如一场赛跑,到了中年,赛程已经过半,而自律就是为了让人跑完余生”。因此,喜欢这种干净利落风格的朋友,也可以拿去做个参考。
Powered by 博鱼体育平台官网网页版 @2013-2022 RSS地图 HTML地图